
6575 Lime ST Vancouver, BC V6P 5V7
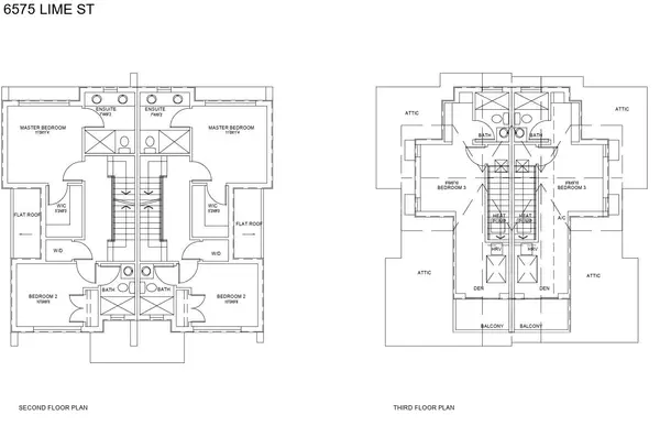
5 Beds
5 Baths
1,994 SqFt
UPDATED:
Key Details
Property Type Single Family Home
Sub Type Half Duplex
Listing Status Active
Purchase Type For Sale
Square Footage 1,994 sqft
Price per Sqft $1,252
MLS Listing ID R3003577
Bedrooms 5
Full Baths 4
HOA Y/N Yes
Year Built 2025
Property Sub-Type Half Duplex
Property Description
Location
Province BC
Community S.W. Marine
Area Vancouver West
Zoning RES
Rooms
Other Rooms Living Room, Dining Room, Porch (enclosed), Foyer, Primary Bedroom, Bedroom, Bar Room, Walk-In Closet, Living Room, Bedroom, Bar Room, Bedroom, Bedroom
Kitchen 0
Interior
Heating Heat Pump, Natural Gas, Radiant
Cooling Air Conditioning
Flooring Hardwood, Mixed
Fireplaces Type Insert
Window Features Window Coverings
Appliance Washer/Dryer, Dishwasher, Refrigerator, Stove
Exterior
Exterior Feature Balcony
Garage Spaces 2.0
Garage Description 2
Fence Fenced
Utilities Available Electricity Connected, Natural Gas Connected, Water Connected
View Y/N No
Roof Type Asphalt,Other,Torch-On
Porch Patio, Deck, Rooftop Deck
Total Parking Spaces 2
Garage Yes
Building
Lot Description Lane Access
Story 3
Foundation Concrete Perimeter
Water Public
Locker No
Others
Restrictions No Restrictions
Ownership Freehold Strata
Security Features Security System,Fire Sprinkler System







